2555 Ouellette Avenue Unit# 200 Windsor, Ontario N8X 1L9

Contact Us

Contact us for more information

Generating Captcha

Your Favourites

 

No Favourites Found

 

8,144 ft2
Air Conditioned Forced Air, Furnace

$14 / ft2

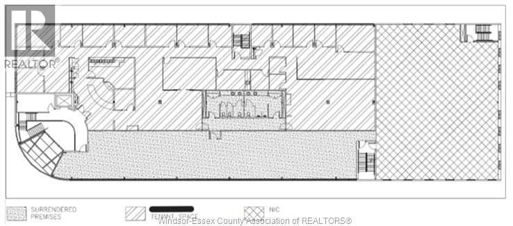
PREMIUM HIGH-END OFFICE SPACE - This high visibility 8144 sq. ft. professional office suite is now available for lease. Modern offices are fully finished with lots of windows for natural light and plenty of parking. Situated in a central, high-demand location, it's surrounded by a variety of complementary businesses and professional services. Enjoy easy access to a wide range of nearby restaurants, shops, and amenities, providing convenience for both employees and clients. (id:22529)

Property Details

MLS® Number 25031356
Property Type Industrial
Neigbourhood Remington Park
Features Visual Exposure

Building

Cooling Type Air Conditioned
Flooring Type Carpeted, Ceramic/porcelain
Heating Fuel Natural Gas
Heating Type Forced Air, Furnace
Size Interior 8,144 Ft2
Total Finished Area 8144 Sqft

Land

Acreage No
Size Irregular 290 X
Size Total Text 290 X
Zoning Description Md1.4

https://www.realtor.ca/real-estate/29171283/2555-ouellette-avenue-unit-200-windsor